アズハイム足立六町
ホームの設備・
周辺環境
居室は自分らしく、ゆったりとお過ごしいただくために、安全と使いやすさのための工夫をこらしています。お好みの空間演出をお楽しみいただけます。共用スペースではお食事に、ご友人とのご歓談に、心地よい時間をお過ごしください。
居室
竣工前のため写真はすべてイメージ(弊社他ホーム)です
※写真はモデルルームであり、実際の居室はベッド・エアコン以外の家具・調度品等は含まれておりません。
共用スペース
写真は参考イメージ(弊社 他ホーム)です。
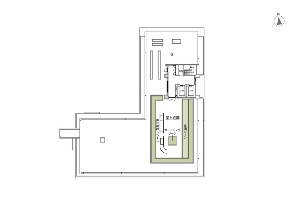
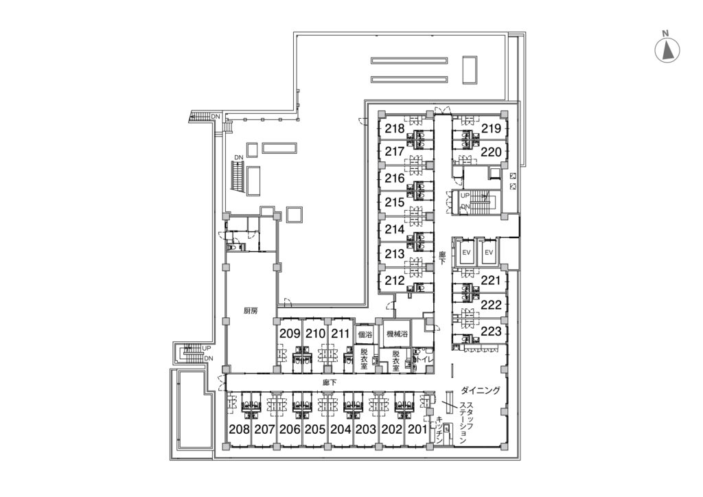
フロアガイド
周辺環境
-
六町駅
-
六町ミュージアム・フローラ
-
保塚地域学習センター
-
足立区立一ツ家第一公園
-
足立区生物園
-
ライフ六町前駅
-
ららテラス北綾瀬
-
足立区総合スポーツセンター
-
ホーム概要や料金プランの他、ご入居者や
ご家族の声をまとめた資料をご送付します。
アズハイムのことがよくわかる
資料請求はこちら
-
見学希望日や見学希望先の予約はこちらから。
入居相談員が親切丁寧に対応させていただきます。
見学予約はこちら
